The New Lodge Project: A Haven for Healing and Honor

At Patriots Cove, we are dedicated to providing a place of sanctuary and healing for our nation’s injured, ill, and end-of-life veterans, first responders, and their dedicated caregivers. Our mission is to offer the very best environment for physical rest and spiritual renewal. To uphold this promise, Patriots Cove has begun replacing the remodeled 1970s-era mobile home that has served faithfully for more than 8 years with a new state-of-the-art facility.

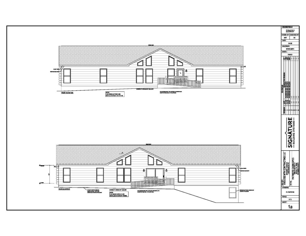
This new Lodge will not only provide additional lodging for guests but also accommodate caregivers and medical professionals, assisting our guests who need more intimate care during their time with us. Some of the rooms will have track systems to transport those who have severe mobility issues or who are unable to walk at all to places like the bathroom and shower. The new lodge will also have better spacing to accommodate powered chairs as well as an elevator to the lower floor for easier access to the back of the building. Many of our patriots need these special accommodations, especially on what may be their “Last Best Day”.

New Lodge Plans at Patriots Cove
New Lodge Plans at Patriots Cove Exterior
New Lodge Plans at Patriots Cove Interior

Support the New Lodge

Contributions are made through a local financial institution and used exclusively for charitable and community purposes.

Skip to content